Serrure 5 points 5900 XL - A2P** - conformité PMR - réversible VACHETTE
Les points clés :
- Serrure à larder 5 points de verrouillage
- Sécurité A2P** et accessibilité PMR
- Réversible
- Axe 120 mm
Produits similaires
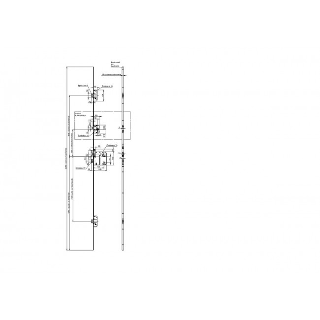
Descriptif détaillé
Description
Cette serrure à larder, à 5 points de verrouillage, 5900 XL de Vachette est destiné à équiper des portes demandant une accessibilité aux personnes en mobilité réduite (PMR).
Elle est également de haute sûreté A2P**.
Cette serrure 5900 XL est équipée de 5 points de condamnation : 1 pêne oblong central 4 boitiers équipés de 2 pênes ronds Ø 10 mm écartés de 100 mm.
Le pêne central est bombé. Cette forme permet de limiter le bruit de claquement lors de la fermeture de la porte.
La serrure 5900 XL est facile à installer. Elle est réversible (droite/gauche). Les trous de fixation, au niveau du cylindre et de la béquille, sont adaptés à tous les types de rosaces, des ensembles blindés et des poignées sur plaques.
Utiliser le jeu de gâches plates 109 R.
Contenu du colis
Livrée sans gâches, sans cylindres et sans protecteur.
Caractéristiques techniques
Axe | 120 mm |
---|---|
Dimension du carré | 7 mm |
Entraxe | 70 mm |
Forme de la têtière | Carrée |
Hauteur de la têtière | 2040 mm |
Installation | A encastrer |
Label A2P | A2P** |
Largeur de têtière | 18 mm |
Main | Droite |
Marque | VACHETTE ASSA ABLOY |
Modèle | 5900 A120 XL SGN2 T204 D |
Nombre de points | 5 |
Réversible | Oui |
Type de pose | A larder |
Type de pêne | Rond |
Code fabricant |
|
Garanties / Normes / Labels / Technologies Normes / Garanties...
Questions / Réponses
à poser une question !
- Quelle est la durée de vie du produit ?
- Est-ce que le produit est facile à utiliser ?
Besoin d'aide
Articles
Pour trouver par moi-même

Comment installer une serrure de porte ?

Pêne de porte bloqué : que faire ?

Quels sont les différents types de serrures et comment ferment-ils ?

Sécurité de porte : une serrure à condamnation, c’est quoi ?

Changement de serrure : à la charge du locataire ou du propriétaire ?

Reconnaître le sens d’ouverture d’une porte : main gauche ou droite ?

Comment mesurer une serrure ?

Comment retourner et changer le pêne d’une serrure ?

Normes et réglementations PMR, tous à la porte

Les fenêtres de style haussmannien : une vue sur le Paris du Second Empire

Séparation d’une pièce : de la porte coulissante au claustra, des idées et des conseils pratiques

Solivage pour terrasse en bois : tout ce qu’il faut savoir !

Fenêtre oscillo-battante bloquée, pourquoi et que faire ?

Que faire en cas de serrure gelée ?

Quels sont les différents types de boulons ?

La norme TSA nécessaire pour quels pays ?

Cinq idées de poignées pour mettre en valeur vos portes blanches

Porte voilée, comment remédier au problème ?

8 astuces pour isoler votre porte d’entrée

Comment ouvrir une porte bloquée ?

Gâche et pêne de porte : la fermeture d’une serrure à la loupe

Schéma d’une serrure à larder : tout savoir sur la fermeture de porte encastrée
Nous sommes à votre écoute
Je suis






Voir aussi
Derniers produits vus