Receveur de douche - extra plat - recoupable - Rectangulaire - Yago LEDA
Les points clés :
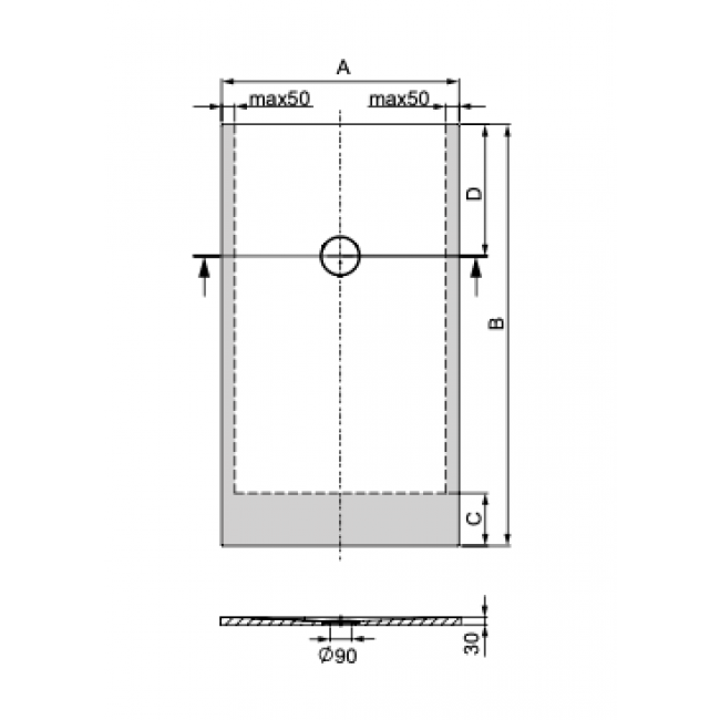
- Recoupable
- Receveur en béton minéral
- Extra-plat : épaisseur 30 mm
- Écoulement sur le petit côté
À partir de
Produits similaires
Descriptif détaillé
Description
Vous recherchez un receveur de douche extra-plat, design et anti-dérapant ? Vous avez des contraintes d'installation particulières ?
Les receveurs de la gamme Yago sont recoupables sur la largeur et en profondeur, en respectant les recommandations du fabricant (environ 50 mm de découpe possible de chaque côté, se reporter au schéma de découpe). La découpe est à réaliser sur chantier avec un disque diamant continu, non fourni. Il est nécessaire de réaliser la découpe uniquement du côté non visible de la pose.
L'installation est possible selon 4 types de pose :
- à encastrer,
- à poser au sol (faible hauteur 3 cm),
- à poser avec pieds (hauteur carrelage sans tablier),
- à poser avec pieds et tablier d'angle.
Afin de garantir une évacuation parfaite de l'eau, nous vous recommandons l'installation d'une bonde de douche extra-plate à grand débit, vendue séparément. Sur ce modèle rectangulaire, l'écoulement se fait sur le petit côté. Un cache bonde assorti avec la surface structurée et de la même couleur est fourni avec le receveur. Attention, celui-ci est compatible uniquement avec la bonde de marque LEDA.
Retrouvez les pieds, les tabliers d'angle et la bonde de douche de marque LEDA dans la rubrique Les Accessoires.
Facile d'entretien, ce receveur est fabriqué en béton minéral : un matériau ultra-rigide, chaud, soyeux au toucher et qui permet d'atténuer les bruits. Une couche de Gelcoat sanitaire, traité anti-UV, recouvre toute la surface visible du produit pour une surface structurée semi-mat avec un aspect pierre minérale (blanc).
Sécurisant, ce modèle est doté d'une surface anti-dérapante afin d'éviter les accidents (norme PN24).
La gamme Yago
La gamme de receveurs de douche Yago de la marque LEDA est déclinée en 3 formats différents : carré, rectangulaire et quart de rond. Tous sont ajustables par découpe. Leur faible épaisseur de seulement 3 cm réduit leur encombrement et la structure en béton minéral, matériau reconnu pour sa robustesse, garantit la solidité et la durabilité des produits.Ils sont également adaptés aux PMR (Personne à Mobilité Réduite) selon l'installation et si la hauteur est inférieure à 20 mm. Cela suppose au minimum une pose semi-encastrée.
Ces receveurs sont conformes à la norme EN 14527+A12010.
Découvrez les autres produits de la gamme Yago dans notre catalogue.
Garantie
En vous inscrivant sur leur site internet, notre fournisseur LEDA vous offre 1 an de garantie supplémentaire ! Plus d'informations ici.Contenu du colis
Bonde extra-plate de diamètre 90 mm NON FOURNIE.
Caractéristiques techniques
Anti-dérapant | Norme PN24 |
---|---|
Couleur | Blanc |
Finition | Structuré |
Forme du receveur | Rectangulaire |
Gamme | Yago |
Marque | LEDA |
Matière | Béton minéral |
Position du siphon | Excentré |
Recoupable | Oui |
Épaisseur | 30 mm |
Code fabricant |
|
Dimensions | |
Pied LEDA compatible | |
Tablier d'angle LEDA compatible |
Documents techniques
Les accessoires
Questions / Réponses
à poser une question !
- Quelle est la durée de vie du produit ?
- Est-ce que le produit est facile à utiliser ?
Besoin d'aide
Articles
Pour trouver par moi-même

Quel receveur de douche choisir ?

Comment choisir les dimensions de sa douche à l’italienne ?

Comment nettoyer et entretenir un bac de douche ?

Comment poser un receveur de douche ?

Tout savoir pour déboucher ses toilettes rapidement et efficacement

Comment installer une douche à l’italienne ?

À quelle hauteur devez-vous placer vos meubles de salle de bain ?

Quelle taille doit faire une salle de bain ?

Création d’une salle de bain : les points à garder en tête

Quel budget prévoir pour rénover une salle de bain ?

Comment s’assurer d’appliquer la bonne pente d’évacuation à une douche ?

Les indispensables pour avoir une salle de bains moderne

Nos idées de décoration de salle de bains à faire soi-même
Nous sommes à votre écoute
Je suis






Voir aussi
Derniers produits vus