Compas pour ferrures coulissantes à translation GU 966 - axe à 9,5 mm FERCO
Les points clés :
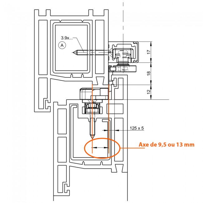
- Axe 9,5 mm
- À compléter pour constituer une ferrure GU 966-150
À partir de
Trouvez votre crémone


Produits similaires
Descriptif détaillé
Description
Cette boîte de compas GU FERCO est destinée au système coulissant à translation GU966-150, avec une hauteur de rail de 33 mm.
Elle est disponible en deux versions : une pour main gauche et l'autre pour main droite.
Elle possède un axe à 9,5 mm. L’axe est la distance entre le milieu de la rainure où se placent les renvois d’angle et la face extérieure de l'encadrement (voir schéma).
Ajoutée aux autres éléments, elle permet de constituer une ferrure coulissante à translation GU 966 complète.
Avantages
- La ferrure GU 966 convient aux portes et fenêtres coulissantes en bois et en PVC. Pour être complète elle doit comprendre : une boîte de sabots, une boîte de compas, une poignée de manœuvre, deux prolongateurs horizontaux, deux prolongateurs verticaux (ou un prolongateur vertical et une crémone), un kit profil, deux gâches de positionnement, et cinq à onze gâches de galet.
- Pièces détachées GU 966 1 a - Chariot avant1 b - Chariot arrière1 c - Vis autotaraudeuse2 a - Butée de guidage3 a - Compas avant3 b - Compas arrière4 - Glissière de compas5 a - Renvoi d'angle avant5 b - Renvoi d'angle arrière8 - Platine de liaison11 a - Poignée de manœuvre avec dispositifanti-enclenchement du vantail11 c - Poignée double avec trou pour barillet12 - Fourche13 - Bouchon14 - Butoir à ressort15 - Support16 a - Crémone à condamnation (profil européen) 17 - Prolongateur vertical18 - Prolongateur horizontal19 - Tringle Ø 10 mm20 - Profil de recouvrement P 120421 - Rail de roulement P 121322 a - Profil de guidage P 122522 b - Profil de recouvrement P 122622 c - Embout23 - Gâche de galet24 - Gâche de positionnement25 - Verrou à double direction
Comment choisir ?
Caractéristiques techniques
| Axe de rainure de compas | 9,50 mm | 
|---|---|
| Marque | FERCO | 
| Code fabricant | 
 | 
| Main | |
| Référence | 
Documents techniques
Les accessoires
Questions / Réponses
sur ce produit ? Un de nos experts ou de
nos clients vous répondra.
- 
            Fênetre basculanteRéponses 1
Besoin d'aide
Articles
Pour trouver par moi-même
 
                    Les schémas de fenêtres : comprendre les symboles sur vos plans
 
                    Normes et réglementations PMR, tous à la porte
 
                    Les fenêtres de style haussmannien : une vue sur le Paris du Second Empire
 
                    Séparation d’une pièce : de la porte coulissante au claustra, des idées et des conseils pratiques
 
                    Solivage pour terrasse en bois : tout ce qu’il faut savoir !
 
                    Fenêtre oscillo-battante bloquée, pourquoi et que faire ?
 
                    Que faire en cas de serrure gelée ?
 
                    Quels sont les différents types de boulons ?
 
                    La norme TSA nécessaire pour quels pays ?
 
                    Cinq idées de poignées pour mettre en valeur vos portes blanches
 
                    Porte voilée, comment remédier au problème ?
 
                    8 astuces pour isoler votre porte d’entrée
 
                    Comment ouvrir une porte bloquée ?
Nous sommes à votre écoute
Je suis
 
                         
                         
                     
                         
                         
                    Avis clients
Note
5/5 1 avis
1 avis vérifiés
| 1 | ||
| 0 | ||
| 0 | ||
| 0 | ||
| 0 | 
Photos de nos clients
Il n'y a pas encore de photos laissées par nos clients. Soyez le premier !
 
        - 
    
        5 / 5 Pièces correspondantes aux schéma Parfait Livraison rapide Réf. article : 402709 Commandé le : 07/06/2022 
 
                 
                                
                             
                                 
                                 
                                 
                                 
                                 
                                 
                                 
                                 
                                     
                                     
                                     
                                     
                                     
                                     
                                     
                                     
                                     
                                                         
                        
                     
                
                 
                
                 
                
                 
                
                 
                
                 
                
                 
                
                 
                
                